INFRAPANELY Heatwell - Reference

Bytový dům Chlumova Praha 620m2
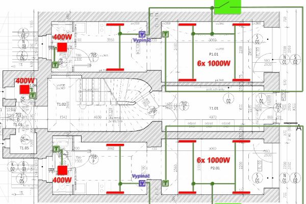
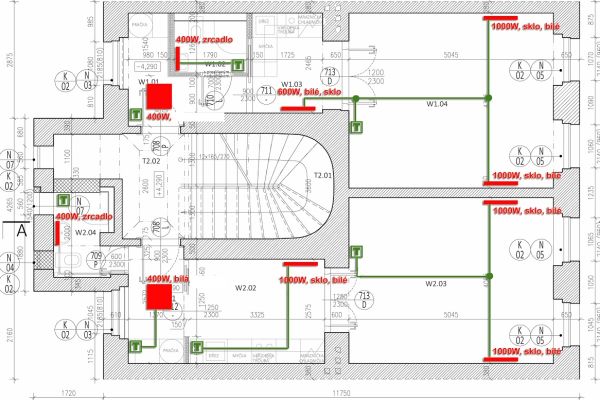
| Plocha: | 620 m2 / 8x byt + 2x komerční prostor |
| Příkon infrapanelů: | 36 kW = 3,6kW / jednotku |
| Oritanční spotřeba: | 5 1000 kWh / jednotku |
| Konstrukce | Cihla 45-60cm, bez zateplení |
| Regulace infrapanelů | termostat na DIN liště + čidla |
| Typy infrapanelů | Sskla, bílá |
| Místo realiazace | Praha |
| Rok realizace | 2018 |
Bytový dům situovaný v srdci pražské čtvrti Žižkov je dokonalým příkladem moderního městského bydlení. které skýtá jak rezidenční, tak komerční prostory. Invetor se po návštěvě několika referenčních staveb podobného rozsahu rozhodl pro infrapanely Heatwell. Infrapanely byly vybrány jako hlavní systém vytápění pro celou nemovitost.
Volba infrapanelů nebyla náhodná. Byla výsledkem pečlivého zvažování různých alternativ a důkladného vyhodnocení všech možných přínosů a nevýhod a referencí. Infrapanely, které využívají princip infračerveného záření, se ukázaly jako ideální řešení pro tento bytový dům. Jejich schopnost rychle a rovnoměrně distribuovat teplo, aniž by docházelo k nežádoucím tepelným ztrátám, z nich činí efektivní a zároveň komfortní volbu pro vytápění jak bytových, tak komerčních prostor.
Jedním z klíčových faktorů, proč byly infrapanely vybrány, je jejich schopnost přizpůsobit se specifickým požadavkům krátkodobého pronájmu jednotlivých bytů. Vzhledem k tomu, že tyto byty jsou pronajímány na krátkodobý pronájem, byla implementována centrální regulace vytápění, která je řízena podle aktuální obsazenosti pokojů. Tento systém umožňuje efektivní řízení spotřeby energie, což má přímý dopad na snížení provozních nákladů. Uživatelé nemají možnost zasahovat do nastavení vytápění, což zajišťuje optimální využití energie a minimalizuje riziko zbytečných nákladů.
Infrapanely se v praxi osvědčily jako velmi účinné a nákladově efektivní řešení. Neustálá kontrola a úprava teploty podle obsazenosti pokojů nejenže zajišťuje maximální komfort pro obyvatele, ale také přináší významné úspory na nákladech za vytápění. Tato zkušenost potvrzuje, že infrapanely jsou nejen moderní a úspornou, ale také praktickou volbou, která se vyplatí jak v rezidenčních, tak komerčních prostorách.
Reference od uživatelů této technologie jsou velmi pozitivní. Uživatelé oceňují především rychlou reakci systému na změny obsazenosti a skutečnost, že infrapanely přispívají k příjemnému a rovnoměrnému teplu v celém prostoru. Komerční nájemci si navíc pochvalují snížení provozních nákladů, což je v dnešní době stále důležitější faktor při rozhodování o volbě vytápěcího systému.
Tento projekt na Žižkově tak slouží jako inspirativní příklad pro další developerské a realitní projekty, které hledají moderní a udržitelné způsoby vytápění. Infratopení se zde jednoznačně osvědčilo jako efektivní a spolehlivý systém, který přináší nejen úspory, ale také zvyšuje komfort a kvalitu bydlení. Dům na Žižkově se tak stává referencí pro použití infrapanelů v městském prostředí, a to jak pro rezidenční, tak komerční účely.

